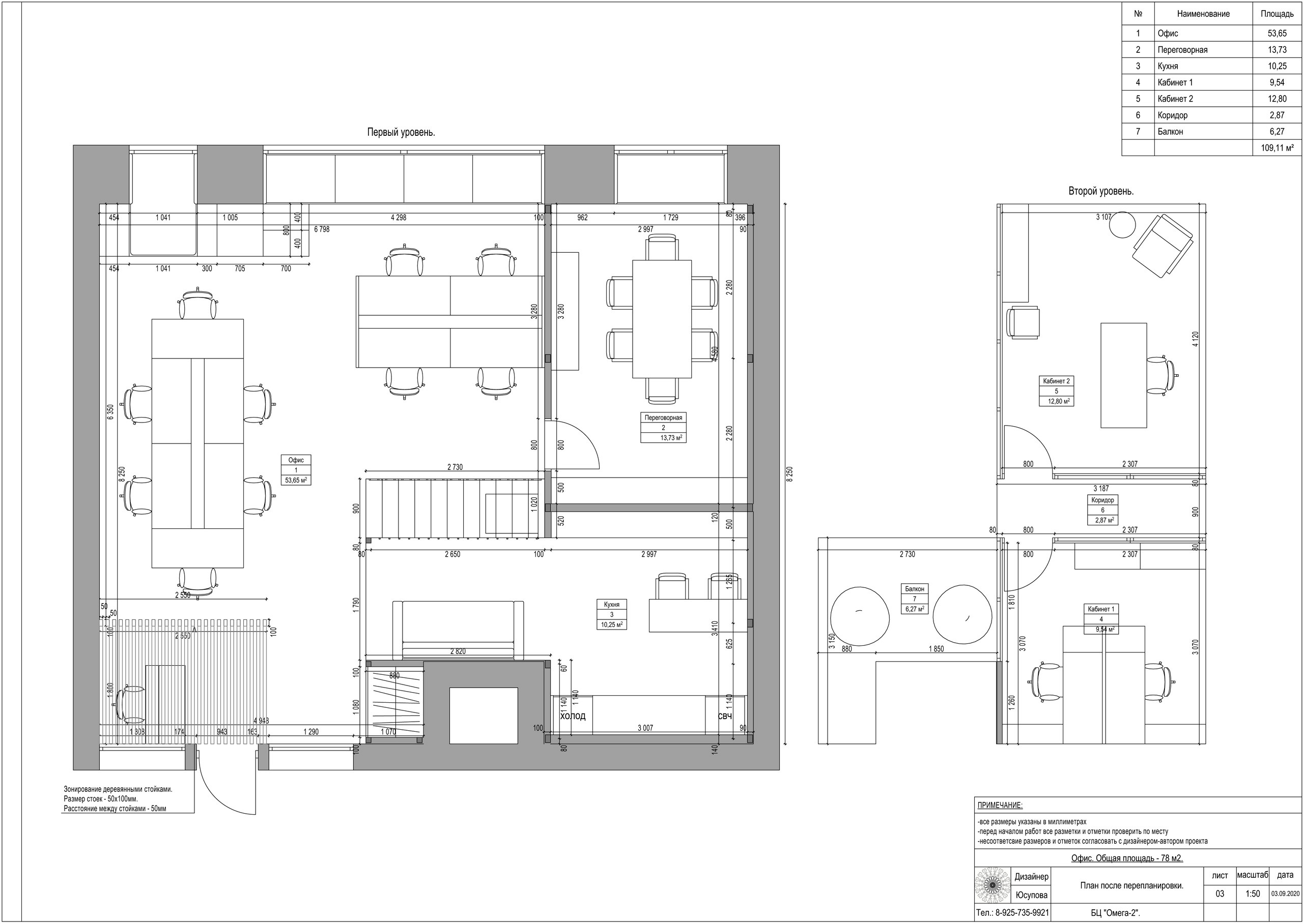
Офис IT-компании.
Помещение оказалось достаточной высоты, чтобы сделать балкон с отдельными кабинетами. Благодаря такому решению, почти на треть увеличили полезную площадь помещения. Под балконом разместилась кухня для сотрудников, и переговорная.
В помещении большие окна, и широкие подоконники — решили использовать их как места для творческой работы. По всей зоне выделили небольшие уютные места, где можно сидеть и работать. В отделке использовали много дерева.



































